安平縣艾瑞金屬絲網有限公司
聯系人:臧經理
手機:13102786273
郵箱:1527528951@qq.com
地址:河北省安平縣城東新工業園緯二路18號
鐵路防護柵欄通用大樣圖
添加時間:2022-08-06 點擊量:
1 鐵路專用隔離網、鐵路線路防護柵欄參考圖

2 鐵路防護柵欄 采用技術標準
2.1鐵路工程建設通用參考圖(鐵路線路防護柵欄)(通線(2012)8001)、(橋下防護柵欄 通線(2012)8002)。
2.2金屬網片使用年限按15年設計。
3 鐵路防護柵欄 技術要求
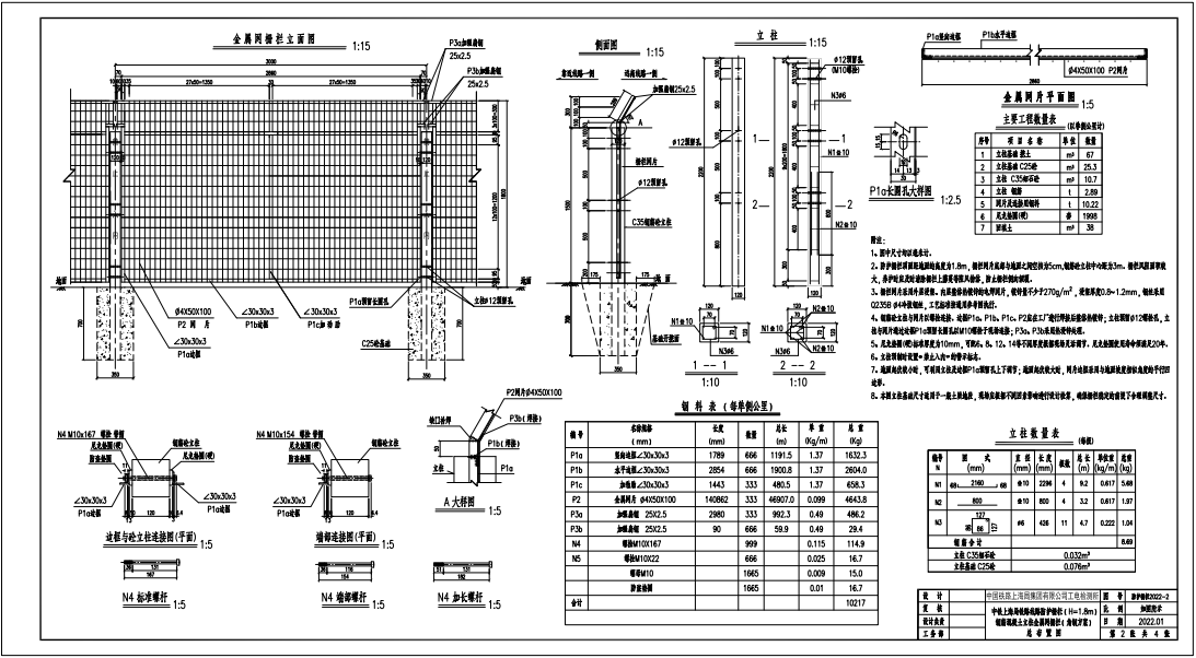
3.1鋼筋混凝土立柱金屬網片防護柵欄由立柱、網片及連接部件組成,防護高度1.8m。
3.2立樁
立柱采用c30鋼筋混凝土預制,截面尺寸120mm*120mm,高度2.2m。預制立時,于頂部中間位置預留42mm*42mm方孔,深度150mm,現場安裝時插入帶連接板并封口的q235方管,半用封水材料填充縫隙。方管規格40mm*40mm,厚度2.5mm。矩管插入長度150mm,外露部分向外折30o,垂直高度300mm。
3.3金屬網片
金屬網片采用q235矩管邊框,規格30mm*50mm,矩管厚度2.0mm;內部網絲采用hpb3006.5mm高線鋼絲冷拔加工,規格75mm*150mm(¢4.0mm),上部向外折角30°,垂直高度300mm。
3.4連接板與螺栓。
立柱連接板、網片連接板采用90°折角q235鋼板,厚度4.0mm,根據不同使用位置分a、b、c三種形式。連接板與螺栓均采用q235鋼,并鍍鋅處理,鍍鋅量270g/m2。
連接板的精度要求:長度誤差≤1.0mm,寬度誤差≤0.5mm,厚度誤差≤0.5mm,孔眼位置偏差≤1.0mm。
3.5金屬網片及柵欄門的網片成形后應整體鍍鋅并進行熱浸塑(或噴塑)處理,鍍鋅量270g/m2,浸塑厚度0.8mm~1.2mm,噴塑顏色選用墨綠色。涂層應均勻,顏色一致,表面光滑,無流柱,滴瘤、粉泡、漏鐵等缺陷。
網片制造精度要求:長度誤差≤2.5mm,高度誤差≤3.0mm。
網片平整度要求:凸起或凹進值≤5.0mm。
冷拔鋼絲鍍鋅前直徑誤差≤0.06mm。焊接網孔誤差≤3.0mm。
焊接網片連接板時,連接板焊接位置應嚴格控制在設計位置,其位置誤差≤1.5mm。
矩管邊框與連接板、網片鋼絲與鋼板、網片鋼絲與矩管邊框的焊接宜采用電阻焊、如用釬焊,應選用合適的焊條,使其變形小。焊接后應清理焊渣。對焊接產生的變形,應進行平整處理。為保證網片自身有足夠的強度,網片焊接點的強度應大于1kn,焊接點脫落數小于4%。
標簽: 鐵路防護柵欄、 鐵路隔離柵欄、 鐵路隔離網,高鐵封閉網柵欄、 鐵路防護網圍欄、




 高鐵防護刺絲滾籠支架系列用品
 高鐵防護刺絲滾籠支架系列用品  鐵路防護隔離設施中的鐵路加高網片
 鐵路防護隔離設施中的鐵路加高網片  鐵路熱鍍鋅防爬刺與加高網片的制作
 鐵路熱鍍鋅防爬刺與加高網片的制作  高鐵護欄網
 高鐵護欄網 
 
			