安平縣艾瑞金屬絲網有限公司
聯系人:臧經理
手機:13102786273
郵箱:1527528951@qq.com
地址:河北省安平縣城東新工業園緯二路18號
飲用水水源地一級保護區防護隔離柵設計說明
添加時間:2022-08-08 點擊量:
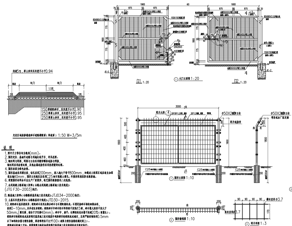
飲用水水源地一級保護區隔離柵設計說明
1防護隔離柵采用鋼管立柱焊接網隔離柵。隔離網總高 1.8 米,每 3 米一節段。隔離柵安裝應保證焊接網隔離柵的平縱線相對美觀。 焊接網隔離柵立柱采用鋼管。邊框、網面采用Φ5.0mm 冷拔鋼絲點焊成型,基礎采用現澆 C25混凝土。所有鋼構件均應先焊接成型后再進行防腐處理,表面處理采用聚氯乙烯熱固性粉末涂層。涂層顏色一般為RAL6005。
2、鋼材為碳素結構鋼 Q235,其技術條件應符合《碳素結構鋼》(GB/T700-2006)的規定。金屬網所有鋼絲,應為碳素鋼絲,并符合《一般用途低碳鋼絲》(YB/T5294-2006)的規定。連接件:可采用冷軋或熱軋鋼板,其技術條件應符合《碳素結構鋼》(GB/T700-2006)、《止動墊圈技術條件》(GB/T98-1988)的規定。
3、基礎部分根據各地區地質地貌的結構和復雜程度的差異,施工的過程中要針對不同地質狀況實施專業技術,基礎部分根據實際情況,一般地質如粉土,沙土等,地基承載力<300KPa,采用300×300×1000 mm的基礎,以達到其基礎的穩定;特殊地質如山區段,地基承載力≥300KPa,采用300×300×500 mm的基礎。說明中隔離柵樣式及參數僅為推薦,不作為指定樣式,施工選取隔離柵時,隔離柵立柱、橫梁、孔徑等不得低于本圖提供參數,且需滿足《隔離柵》(GB/T 26941-2011)規范中相關參數要求。

飲用水水源地一級保護區隔離柵實物圖


標簽: 高速公路兩側防護隔離柵、 水源地鐵絲網圍欄、 水源地防護隔離網、 水源地金屬隔離網、 高鐵鐵絲網圍欄、 南水北調隔離柵、




 干渠河道金屬鐵絲網
 干渠河道金屬鐵絲網  云南水庫鋼鐵絲網工程案例
 云南水庫鋼鐵絲網工程案例  高速公路鋼板網式護欄網
 高速公路鋼板網式護欄網  水庫水源地圍欄網
 水庫水源地圍欄網 
 
			